Главная страница / 2-комнатная квартира в ЖК "Светлогорский"

2-комнатная квартира в ЖК «Светлогорский»

Тип постройки: White box
Площадь квартиры: 60 м²
Реализация: 2024 год
Проектирование: 2023 год
О проекте
Проект 2-комнатной квартиры в жилом комплексе «Светлогорский» — это эксперимент с формой, настроением и цветом. Интерьер выполнен в современном эклектичном стиле с элементами ретро-эстетики 50−60-х годов. Пространство получилось выразительным и индивидуальным, наполненным характером, ностальгией и актуальной эстетикой.
Создание индивидуального интерьера в эклектичном стиле с элементами ретро
Задачи проекта
Заказчица пришла с чётким запросом: интерьер с ностальгическими нотами, отсылающими к эстетике 50−60-х годов, но в современном прочтении. Мы разработали эклектичную концепцию, объединив винтажные акценты, выразительные формы и актуальные приёмы оформления. Интерьер получился характерным, смелым и абсолютно уникальным.
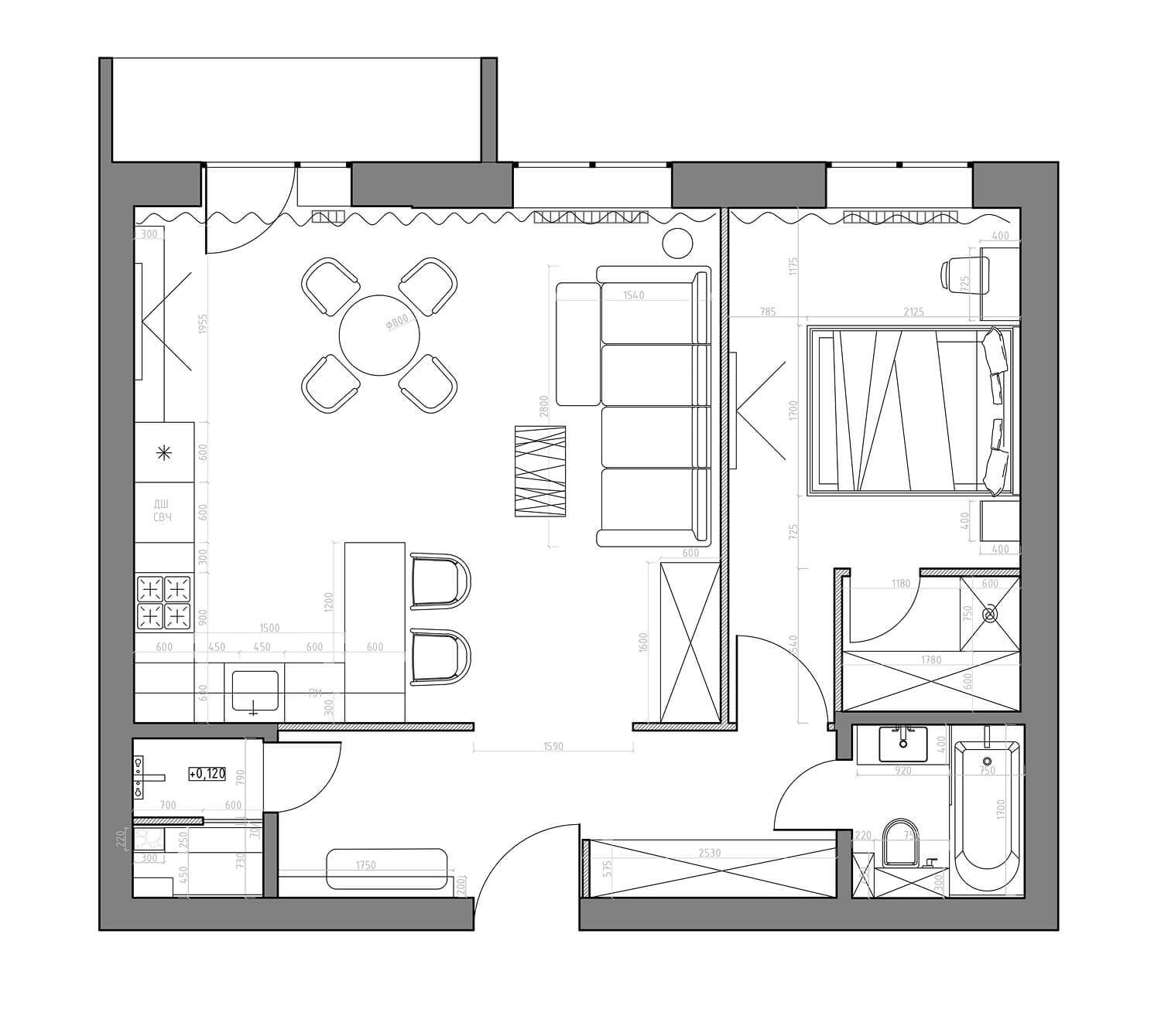
Расширение пространства за счёт объединения кухни и гостиной
Основной задачей было создать ощущение простора и свободы. Мы объединили кухню и гостиную, благодаря чему сформировалось большое общее пространство, наполненное светом и воздухом. Особое внимание уделено зонированию и подбору мебели — это позволило сохранить баланс между функциональностью и визуальной цельностью.
Проектирование компактной сауны в структуре квартиры
Ещё одним пожеланием заказчицы стало наличие небольшой, но полноценной сауны. Мы интегрировали её в планировку так, чтобы она не перегружала интерьер, а органично дополняла его. Сауна стала логичным продолжением идеи заботы о себе, уюта и удовольствия от повседневного проживания.
Планировочные решения
Интерьер и зонирование
Квартира создавалась для женщины с тонким вкусом и любовью к эстетике прошлых десятилетий. За основу взята идея современного эклектичного пространства, в котором ретро-нотки 50−60-х годов встречаются с актуальными формами и решениями. Этот интерьер — не про стандартные сочетания, а про смелые визуальные высказывания, индивидуальность и настроение.
Объединённая кухня-гостиная стала сердцем квартиры — просторной, светлой, наполненной жизнью. Мы предусмотрели несколько зон: рабочую, обеденную и мягкую — для отдыха и общения. Компактная сауна была аккуратно встроена в планировку, не перегружая пространство. Она стала приятным и неожиданным акцентом, добавив проекту ощущение уюта и заботы о себе.
В отделке использованы выразительные материалы: древесина с насыщенной текстурой, декоративная штукатурка, латунные элементы, плитка с винтажным характером. Сложные, нестандартные цветовые сочетания задали нужную эмоциональность: здесь уют сочетается с дерзостью, а ностальгия — с актуальностью. Каждый предмет мебели и декора был подобран с учётом общего ритма интерьера и вниманием к деталям.

стал воплощением идеи индивидуального, эмоционального интерьера, в котором прошлое гармонично сочетается с настоящим. Эклектика, фактуры и нестандартные решения создают атмосферу уюта, характерного стиля и тонкой эстетики. Это пространство для жизни с настроением, в котором каждая деталь — отражение личности хозяйки.
Проект 2-комнатной квартиры в ЖК «Светлогорский»
Ищете идеальное решение для оформления пространства?
Мы предлагаем индивидуальный подход, который гармонично объединяют комфорт, функциональность и эстетику как для жилых, так и для коммерческих интерьеров.
Made on
Tilda