Главная страница / 2-комнатная квартира ЖК «Сити Парк»

2-комнатная квартира в ЖК «Сити Парк»

Тип постройки: White box
Площадь квартиры: 63,7 м²
Реализация: 2025 год
Проектирование: 2024 год
О проекте
Проект 2-комнатной квартиры в жилом комплексе "Сити Парк" направлен на создание комфортного и стильного жилого пространства, идеального для современного образа жизни. Интерьер квартиры оформлен в стиле минимализма, что обеспечивает легкость восприятия и непринужденную атмосферу. Особое внимание уделяется функциональности и гармонии между различными зонами квартиры.
Создание единого пространства кухни-гостиной для оптимизации жилой площади
Задачи проекта
Объединение кухни и гостиной значительно увеличивает эффективное использование жилой площади. Открытая планировка способствует взаимодействию между членами семьи и создает атмосферу единения. При этом важно тщательно продумать зонирование с помощью мебели, что позволит сохранить комфорт и функциональность каждой зоны.
Проектирование сауны для комфортного отдыха и релаксации
Сауна станет важной частью проекта, предлагая оптимальное пространство для отдыха и восстановления после рабочего дня. Она будет оснащена современными элементами, такими как светодиодное освещение и гармоничное сочетание натуральных материалов, что обеспечит создание расслабляющей обстановки. Это место станет настоящим оазисом для семейного времяпрепровождения и личного уединения.
Минимализм в теплых оттенках для создания уютной атмосферы
Интерьер квартиры будет оформлен в стиле минимализма с акцентом на теплые и уютные оттенки. Использование пастельных тонов, таких как бежевый, персиковый и светло-коричневый создаст гармонию и спокойствие. Применение простых форм и фактур позволит избежать визуального нагромождения и сделать пространство более легким, что способствует расслаблению и ощущению домашнего уюта.
Планировочные решения
Интерьер и зонирование
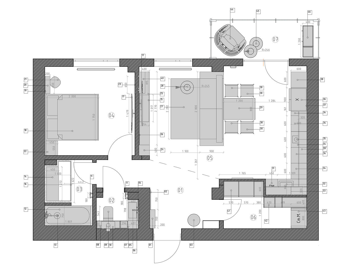
В рамках проекта было осуществлено объединение кухни, гостиной и прихожей с помощью демонтажа перегородок. Это позволило увеличить пространство и избавиться от длинных темных коридоров, сделав квартиру более светлой и просторной. Новый интерьер в стиле минимализма выделяется использованием теплых оттенков, что создает атмосферу уюта и спокойствия в каждом уголке.
Основным акцентом в интерьере стал уютный оранжевый цвет, который в разных вариациях — от рыжего до персикового — наполняет пространство теплом и энергией. Это решение перекликается с уникальной интерпретацией оранжевого цвета, описанного Василием Кандинским как символ здоровья и жизненной силы, что поддерживает идею о создании гармоничного и жизнерадостного пространства.

является современным воплощением принципов дизайна, акцентирующих внимание на функциональности и эстетике. Это пространство станет идеальным местом для жизни, где каждый элемент продуман для максимального комфорта и удовольствия от проживания.
Проект 2-комнатной квартиры в ЖК «Сити Парк»
Ищете идеальное решение для оформления пространства?
Мы предлагаем индивидуальный подход, который гармонично объединяют комфорт, функциональность и эстетику как для жилых, так и для коммерческих интерьеров.
Made on
Tilda