Главная страница / 2-комнатная квартира в ЖК "Чижи"

2-комнатная квартира в ЖК «Чижи»

Тип постройки: White box
Площадь квартиры: 57,1 м²
Реализация: 2025 год
Проектирование: 2025 год
О проекте
Проект 2-комнатной квартиры в жилом комплексе «Чижи» ориентирован на создание минималистичного и функционального пространства с выразительными архитектурными элементами и актуальными материалами. Интерьер выполнен в современном стиле с акцентом на долговечность решений и эстетическую сдержанность. Пространство объединяет практичность, визуальную чистоту и эмоциональную глубину.
Создание функционального пространства в современном минимализме
Задачи проекта
Ключевая задача — разработать интерьер, в котором каждая деталь продумана и несёт функциональную нагрузку. Минимализм здесь не про пустоту, а про осознанный выбор: только необходимые элементы, выверенные формы и спокойная палитра. Пространство получилось лёгким, структурным и удобным для жизни.
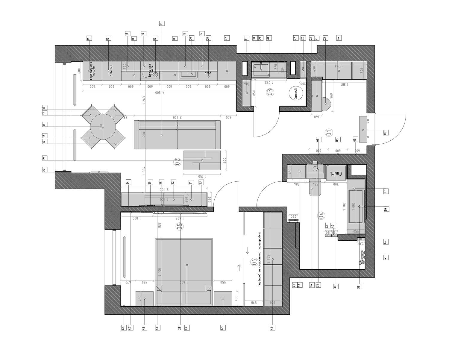
Объединение кухни-гостиной и коридора для увеличения полезной площади
Мы переосмыслили планировку, объединив зону прихожей с кухней-гостиной. Это позволило визуально расширить пространство и усилить ощущение единства. Благодаря встроенным решениям и зеркальным панелям, входная зона приобрела глубину и визуальную лёгкость.
Создание интерьера, актуального на долгие годы
Особое внимание уделено материалам и цветовому решению, которые не подвержены быстрому устареванию. Интерьер построен на сдержанных контрастах, лаконичных формах и естественных фактурах. Такая концепция обеспечивает долговечность стиля — пространство будет выглядеть современно и актуально вне зависимости от трендов.
Планировочные решения
Интерьер и зонирование
Кухня-гостиная выполнена в современной минималистичной стилистике с контрастными, но благородными оттенками. Трендовые фасады с медной отделкой добавляют пространству выразительности и легкого лоска, а тёплый глубокий оттенок дерева на полу создаёт уют и балансирует холодные акценты. Зонирование построено таким образом, чтобы сохранить максимум открытого пространства — кухня, обеденная зона и зона отдыха объединены, но не конкурируют между собой.
Особое внимание мы уделили входной зоне. Зеркальные панели во всю высоту зрительно увеличивают пространство и формируют эффектную геометрию прихожей. Встроенный шкаф и лаконичный столик для сборов делают пространство удобным и собранным — без лишних деталей, но со всем необходимым.
Спальня продолжает выбранную эстетику — здесь царит визуальный покой и сдержанность. В интерьере доминируют тёмные акценты и мягкое освещение, создающее обволакивающую атмосферу отдыха. Важным элементом стала стеклянная перегородка, за которой разместилась гардеробная. Она не только подчёркивает архитектуру пространства, но и визуально расширяет спальню, оставаясь при этом функциональной.
В санузле использованы стеклоблоки нейтрального оттенка, которые обеспечивают естественное рассеянное освещение и добавляют интерьеру лёгкости. Решения, применённые в отделке, поддерживают общий стиль квартиры, подчёркивая его чистоту, актуальность и внимание к деталям.

— это гармоничное сочетание минимализма, выразительных материалов и продуманных решений. Пространство получилось лаконичным, но атмосферным, с сильной архитектурной основой и вниманием к деталям. Этот интерьер будет оставаться актуальным на протяжении многих лет, сохраняя ощущение чистоты, уюта и внутренней целостности.
Проект 2-комнатной квартиры в ЖК «Чижи»
Ищете идеальное решение для оформления пространства?
Мы предлагаем индивидуальный подход, который гармонично объединяют комфорт, функциональность и эстетику как для жилых, так и для коммерческих интерьеров.
Made on
Tilda