Главная страница / 2-комнатная квартира в ЖК «Метрополис»

2-комнатная квартира в ЖК «Метрополис»

Тип постройки: White box
Площадь квартиры: 49,4 м²
Реализация: 2024 год
Проектирование: 2024 год
О проекте
Проект 2-комнатной квартиры в ЖК «Метрополис» — это светлое, минималистичное пространство с акцентом на воздух, структуру и визуальную лёгкость. Интерьер выполнен в современной стилистике с использованием натуральных материалов, актуальных форм и нестандартных декоративных решений. Пространство получилось изящным, сбалансированным и наполненным светом.
Создание светлого минималистичного интерьера
Задачи проекта
Основной задачей было сохранить максимум открытого пространства и визуальной легкости. Мы работали с базовыми светлыми оттенками и натуральными текстурами, что позволило добиться чистоты восприятия и уюта. Дизайн построен на тонких деталях: простая геометрия, рельефные поверхности и сложные по форме декоративные элементы формируют атмосферу лёгкости и современности.
Проектирование гардеробной в спальне
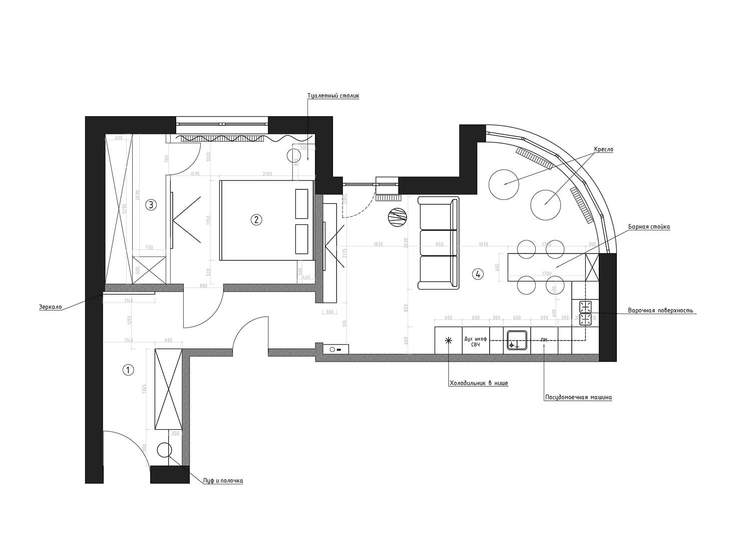
В спальне предусмотрена полноценная гардеробная, органично встроенная в общее пространство. Мы сохранили единый стиль, использовав светлые фасады и встроенные решения, чтобы зона хранения не выбивалась из общей композиции. Благодаря правильному зонированию спальня остаётся лёгкой, но при этом полностью функциональной.
Планировочные решения
Интерьер и зонирование
Кухня-гостиная — ключевое пространство квартиры. Благодаря нестандартной геометрии окон, помещение получило характер и глубину. Мы организовали лаунж-зону рядом с кухней, сделав пространство не только практичным, но и расслабленным. Необычные светильники, зеркала нестандартной формы, акцентные рельефные панно — всё это создаёт уникальную эстетику, подчёркивающую архитектуру квартиры.

— это актуальное, светлое пространство, в котором сочетаются минимализм, функциональность и тонкая эстетика. Интерьер получился сдержанным, но выразительным — с характером, ритмом и вниманием к материалам, формам и деталям, создающим атмосферу лёгкости и уюта.
Проект квартиры в ЖК «Метрополис»
Ищете идеальное решение для оформления пространства?
Мы предлагаем индивидуальный подход, который гармонично объединяют комфорт, функциональность и эстетику как для жилых, так и для коммерческих интерьеров.
Made on
Tilda