Главная страница / Ресторан «Лес и гриль»

Эскизный проект ресторана «Лес и Гриль»

Тип постройки: Ресторан
Площадь помещения: 224,4 м²
Проектирование: 2022 год
О проекте
Эскизный проект ресторана «Лес и Гриль», расположенного в центре Красноярска, направлен на создание атмосферного и концептуального пространства с открытой кухней, природными мотивами и современными деталями. Основная идея интерьера — соединение городской среды с ощущением природы, уюта и гастрономического тепла.
Создание концептуального пространства с комфортной и продуманной посадкой
Задачи проекта
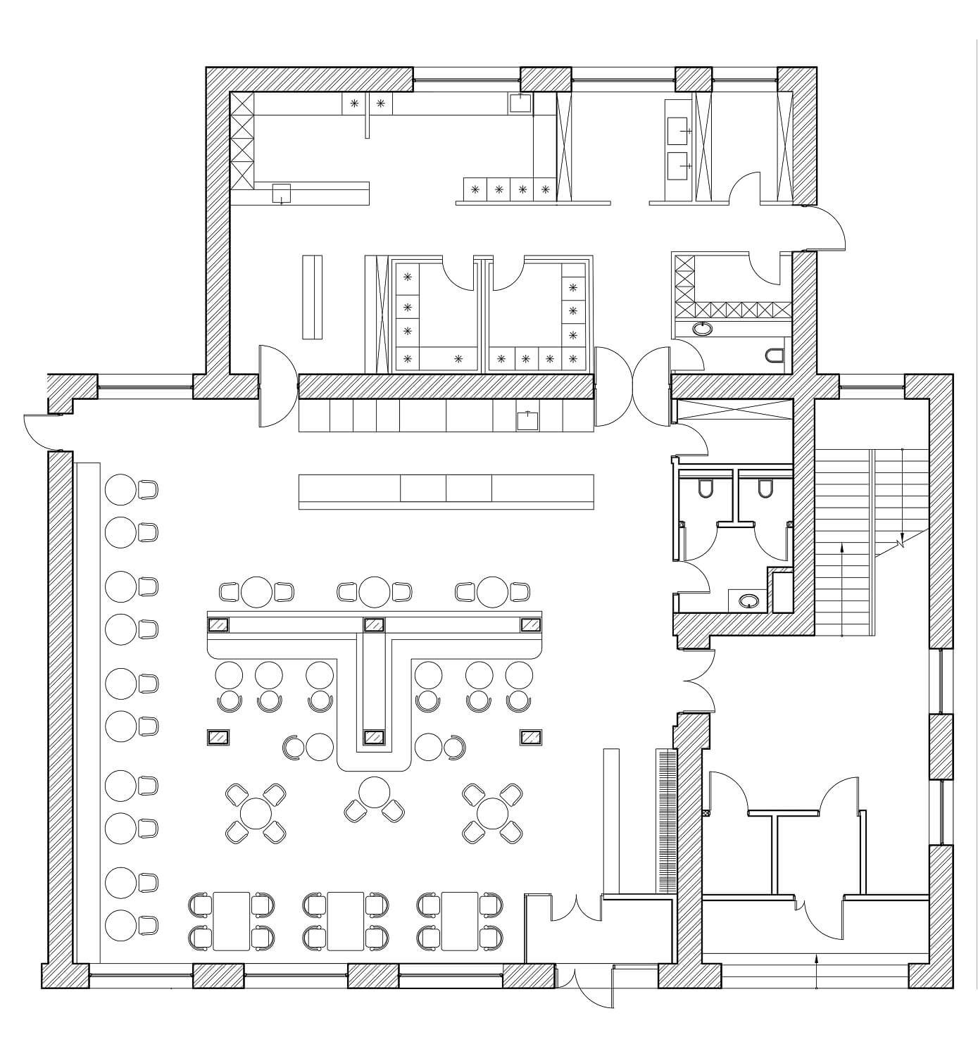
Особое внимание в проекте уделено зонированию и организации посадочных мест. Мы стремились создать пространство, в котором каждая зона будет ощущаться уединённой, но при этом сохранять визуальную открытость. Центром композиции стал остров с растительностью — он мягко зонирует зал, добавляя живость и атмосферу.
Проектирование открытой кухни в зале ресторана
Гриль расположен прямо в зале, и это стало важным акцентом пространства. Мы интегрировали открытую кухню в интерьер таким образом, чтобы она была видимой, но при этом не перегружала визуально зал. Это решение усиливает ощущение вовлечённости в процесс приготовления блюд и делает атмосферу ресторана более живой.
Использование современных материалов и выразительных декоративных приёмов
Интерьер построен на сочетании натуральных текстур и современных решений: дерево, латунь, фрески и нестандартные формы освещения. Авторская фреска с изображением леса, переходящая в потолок, усиливает ощущение погружения в природу. Латунные люстры и акценты добавляют интерьеру выразительности и визуальной ценности.
Планировочные решения
Интерьер и зонирование
Интерьер ресторана получился эмоциональным и узнаваемым. Теплое освещение, природные мотивы и открытая кухня создают атмосферу уюта и доверия. Пространство сформировано так, чтобы гостю хотелось остаться подольше — не только из-за кухни, но и из-за ощущений.

— это синтез природы, огня и гастрономии, воплощённый в архитектуре и дизайне. Интерьер становится частью опыта, усиливая впечатления от каждого визита и делая атмосферу по-настоящему запоминающейся.
Эскизный проект ресторана «Лес и Гриль»
Ищете идеальное решение для оформления пространства?
Мы предлагаем индивидуальный подход, который гармонично объединяют комфорт, функциональность и эстетику как для жилых, так и для коммерческих интерьеров.
Made on
Tilda