Главная страница / 2-комнатная квартира в ЖК «Бограда»

2-комнатная квартира в ЖК «Бограда»

Тип постройки: White box
Площадь квартиры: 68 м²
Реализация: 2023 год
Проектирование: 2022 год
О проекте
Проект 2-комнатной квартиры в жилом комплексе «Бограда» ориентирован на создание светлого, функционального пространства с выразительной архитектурой и природной эстетикой. Интерьер выполнен в современном стиле с акцентом на натуральные материалы, спокойные оттенки и комфорт. Пространство получилось цельным, тёплым и тактильным — идеально подходящим для размеренной и наполненной жизни.
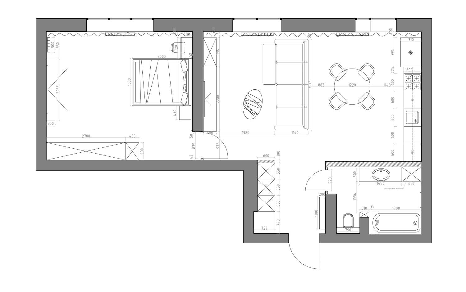
Создание единого пространства кухни-гостиной
Задачи проекта
Ключевой задачей стало формирование открытой и визуально лёгкой планировки. Объединённая кухня-гостиная обеспечивает ощущение простора и свободы. Благодаря зонированию, продуманной расстановке мебели и сценариям освещения, каждая зона функционирует автономно, при этом оставаясь частью общего ритма интерьера.
Использование натуральных материалов и природной палитры
Дизайн строится на тактильности и природной гармонии. Мы использовали дерево, стекло, латунь и текстиль в спокойных, землистых оттенках. Натуральные материалы не только придают интерьеру ощущение уюта, но и создают визуальную теплоту, усиливая связь с природой.
Акцент на функциональность и комфорт
Каждое решение в проекте подчинено идее удобства и практичности. От просторного кухонного модуля до парящего подвесного шкафа в прихожей — все элементы встроены в архитектуру пространства и работают на комфорт. Многоуровневое освещение добавляет гибкости, а декоративные акценты из стекла и латуни вносят элегантность в повседневность.
Планировочные решения
Интерьер и зонирование
Пространство квартиры раскрывается сразу при входе: прихожая лишена перегородок и визуальных барьеров, что создаёт ощущение открытости. Визуальной доминантой этой зоны стал подвесной шкаф — лёгкий, парящий, он задаёт тон всему интерьеру. Натуральные материалы, спокойные оттенки и лаконичные формы формируют атмосферу уюта уже с первых шагов.
Санузел построен на выразительном контрасте бетона и тёплого дерева — эти материалы дополняют друг друга, продолжая общую эстетику интерьера и сохраняя единство стиля.

— это гармония природы, архитектуры и комфорта. Интерьер получился тактильным, спокойным и в то же время выразительным. Он сочетает в себе актуальный дизайн, продуманные решения и естественную теплоту — всё, что нужно для современной жизни.
Проект 2-комнатной квартиры в ЖК «Бограда»
Ищете идеальное решение для оформления пространства?
Мы предлагаем индивидуальный подход, который гармонично объединяют комфорт, функциональность и эстетику как для жилых, так и для коммерческих интерьеров.
Made on
Tilda