Главная страница / 3-комнатная квартира в ЖК "Самолет"

3-комнатная квартира в ЖК "Самолет"

Тип постройки: White box
Площадь квартиры: 61,5 м²
Реализация: 2025 год
Проектирование: 2023 год
О проекте
Проект 3-комнатной квартиры в жилом комплексе «Самолет» ориентирован на создание стильного и выразительного пространства, отражающего характер молодого холостого мужчины. Интерьер сочетает строгость, эмоциональность и функциональность, формируя атмосферу силы и уюта. Основное внимание уделено фактурам, освещению и индивидуальным пожеланиям заказчика.
Создание строгого и функционального интерьера, отражающего характер владельца
Задачи проекта
Интерьер должен был стать отражением внутреннего мира заказчика — уверенного, собранного, с активным ритмом жизни. Четкие линии, лаконичные формы, глубокие тона и тактильные материалы помогли выразить характер без излишней декоративности.
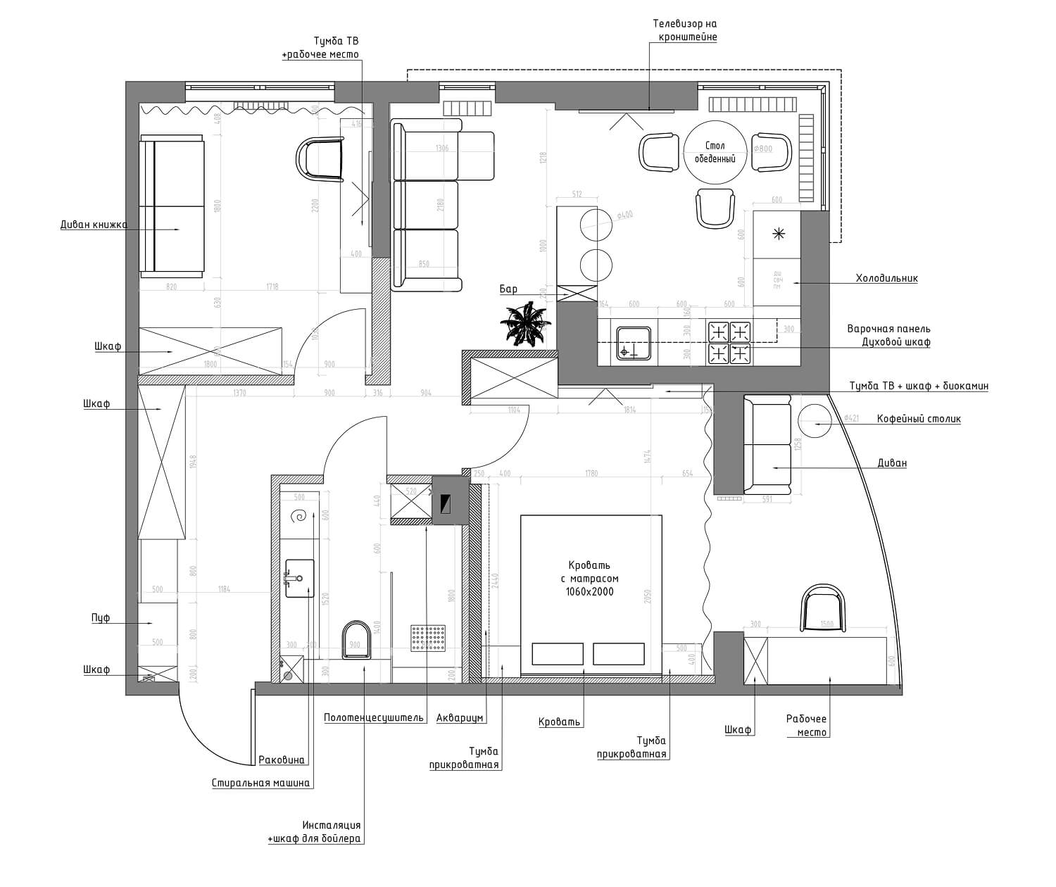
Объединение спальни с лоджией для организации рабочей зоны и зоны отдыха
Присоединение лоджии позволило функционально расширить пространство спальни. За счёт грамотной перепланировки мы выделили уютное рабочее место и лаунж-зону — идеальные для сосредоточенности днём и расслабления вечером.
Интеграция аквариума во всю стену и создание лаунж-зоны
Одним из ключевых пожеланий клиента стал встроенный аквариум во всю стену спальни — не просто декоративный элемент, а эмоциональный центр интерьера. Его размещение потребовало технической точности и деликатной интеграции в пространство. Благодаря объединению спальни с лоджией, мы не только обеспечили комфортный доступ к аквариуму для обслуживания, но и организовали лаунж-зону с мягким светом и видом на водную гладь — идеальное место для отдыха и уединения.
Планировочные решения
Интерьер и зонирование
Ключевым элементом проекта стала спальня с аквариумом во всю стену — мечта заказчика, которая потребовала особого подхода к планировке и деталям. Мы объединили лоджию со спальней, благодаря чему появилось пространство для рабочей зоны и лаунж-уголка с видом на водную гладь. Аквариум стал эмоциональным центром интерьера, вокруг которого выстроено всё зонирование.
Мы использовали глубокие оттенки, грубые природные фактуры и декоративную штукатурку, чтобы подчеркнуть характер пространства. Приглушённое освещение и продуманная подсветка раскрывают текстуру материалов и формируют камерное настроение. Интерьер отражает внутреннюю собранность, уверенность и стремление к комфорту без лишнего — точно в духе владельца квартиры.

воплощает идею сильного, выверенного интерьера, в котором каждая деталь подчинена функциональности и выразительности. Это пространство станет комфортной и вдохновляющей средой для владельца, отражая его характер и образ жизни через материалы, свет и продуманные планировочные решения.
Проект 3-комнатной квартиры в ЖК «Самолет»
Ищете идеальное решение для оформления пространства?
Мы предлагаем индивидуальный подход, который гармонично объединяют комфорт, функциональность и эстетику как для жилых, так и для коммерческих интерьеров.
Made on
Tilda